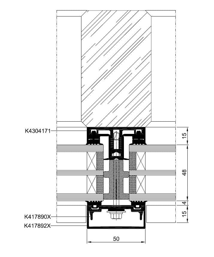
Spojenie hliníka s drevom alebo oceľou v jednej konštrukcii
Na základoch stĺpikovo-priečkovej fasády MB-SR50N vznikol príložkový systém, ktorý umožňuje spájať konštrukčné materiály s rôznymi vlastnosťami, iné z vnútornej strany a iné z vonkajšej strany miestnosti.
Hliníkové prvky použité z vonkajšej strany slúžia pre zabezpečenie trvalej vnútornej ochrany vnútornej skeletovej konštrukcie proti atmosférickým vplyvom.
Pre stavbu nosnej konštrukcie sa môžu použiť dva druhy materiálov: drevené hranoly, ktoré tvoria príjemnú a útulnú atmosféru, alebo oceľové profily pre industriálny vzhľad prípadne vyššie statické nároky.









