Detail a najvyššia kvalita
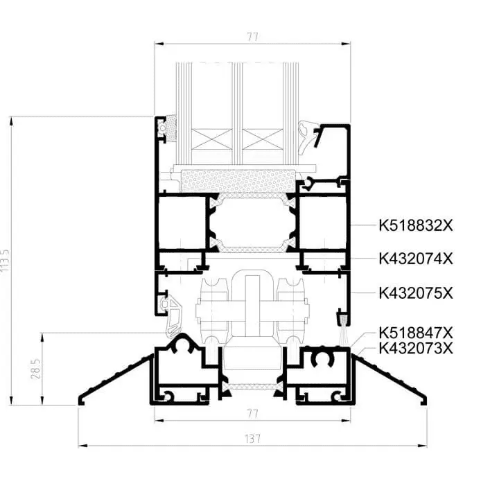
Dvere MB-86 FOLD LINE HD, ktoré sú vyrábané s dôrazom na detail a najvyššiu kvalitu, predstavujú skutočne špičkovú inováciu v oblasti skladacích konštrukcií. Posuvné dvere spĺňajú vysoké technické štandardy, vďaka čomu môžu dosahovať mimoriadne rozmery: maximálna výška krídiel môže dosiahnuť až 3 m, šírka potom 1,2 m. Izolačné parametre dverí zvyšuje centrálna komora s inovatívnymi tepelnými mostíkmi.
Posuvné dvere sú veľmi praktické a optimálne sa osvedčia pri rodinných domoch. Vďaka svojej výnimočnej konštrukcii môžu byť osadené izolačným dvojsklom alebo trojsklom rôznej hrúbky. Vďaka flexibilite si môže užívateľ vyberať medzi štandardnými riešeniami, prevedením s lepšou akustickou izoláciou alebo väčšou bezpečnosťou.





