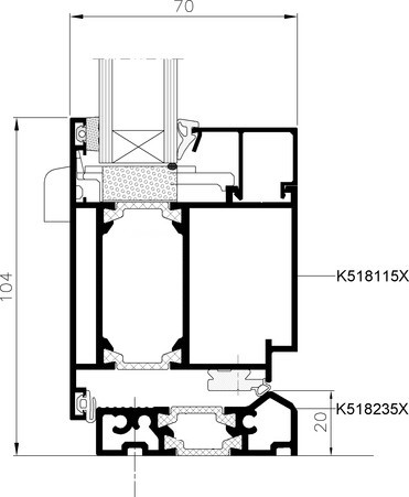
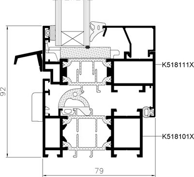
Zvýšená tepelná izolácia
MB-70 je moderný systém pre výrobu okien a dverí so zvýšenou tepelnou izoláciou. Spĺňa požiadavky na tepelnú izoláciu podľa ČSN 73 0540. Profilácia 3-komorových profilov dosahuje súčiniteľ prestupu tepla Uf = 1,6-2,4 W / m2K podľa EN ISO 10077.




