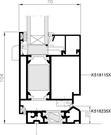
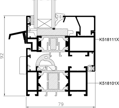
Špeciálne izolačné vložky pre zvýšený tepelný komfort
MB-70 HI je rokmi preverený systém s dobrou tepelnou izoláciou. Tepelný komfort je vyšší ako u štandardných systémov vďaka špeciálnym izolačným vložkám v profiloch a tiež pod sklom.Prestup tepla oknom Uw dosahuje až 1,0 W / m2K a priestup dverami Ud až 1,1 W / m2K.




