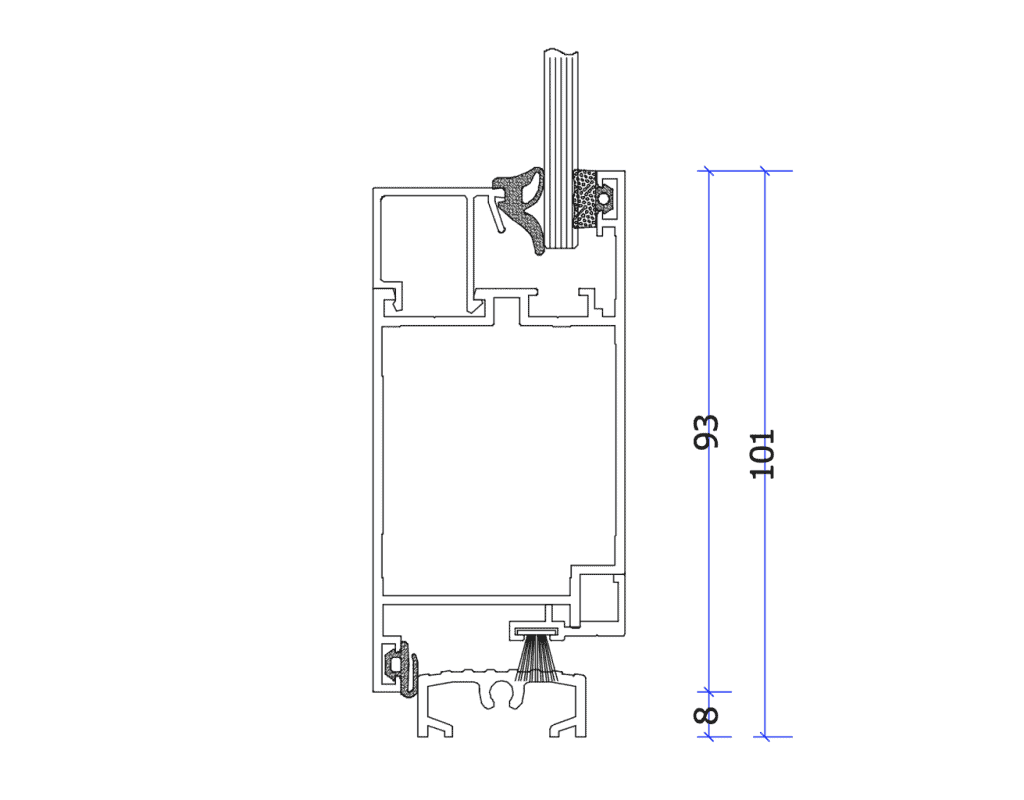
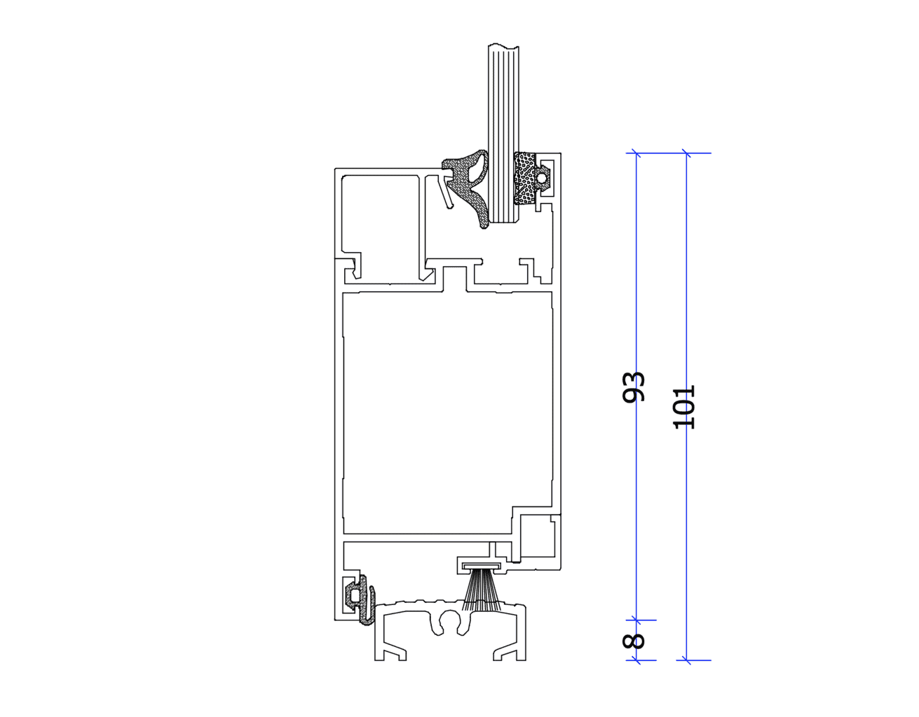
Okenno-dverný systém bez prerušeného tepelného mosta
Systém MB-45 je určený na výrobu vnútorných prvkov bez požiadavky na tepelnú izoláciu. Ponúka riešenia pre rôzne typy priečok, okien, dverí a to ako štandardných tak aj posuvných (s ručným alebo automatickým pohonom), kývne dvere tzv. lietačky atď. Zaujímavým a ekonomicky výhodným riešením sú dymotesné dvere bez požiarnej odolnosti MB-45D (v triede S30). Systém slúži ako základ pre ďalšie riešenia ako je napr. MB-45 OFFICE. Na báze systému MB-45 možno tiež konštruovať dymotesné dvere MB-45D v triede Sa, S200.




